Casa indipendente in vendita

Costigliole Saluzzo, Via campolungo
€ 195.000
5 locali 5 locali
201 Mq 201 Mq
2 bagni 2 bagni

Casa indipendente in vendita

Costigliole Saluzzo, Via campolungo

Descrizione annuncio

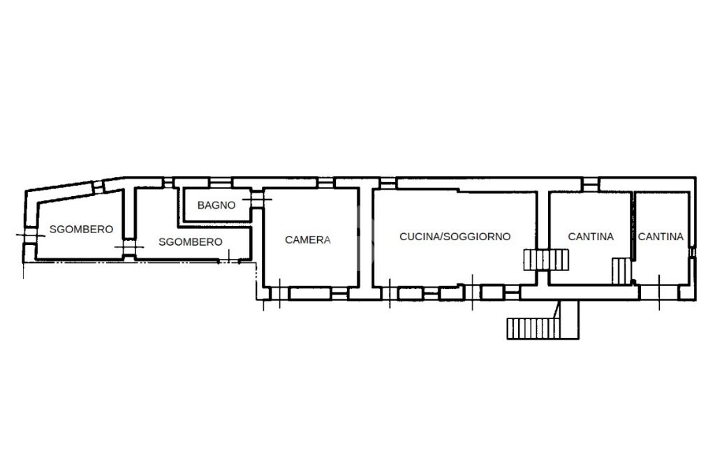
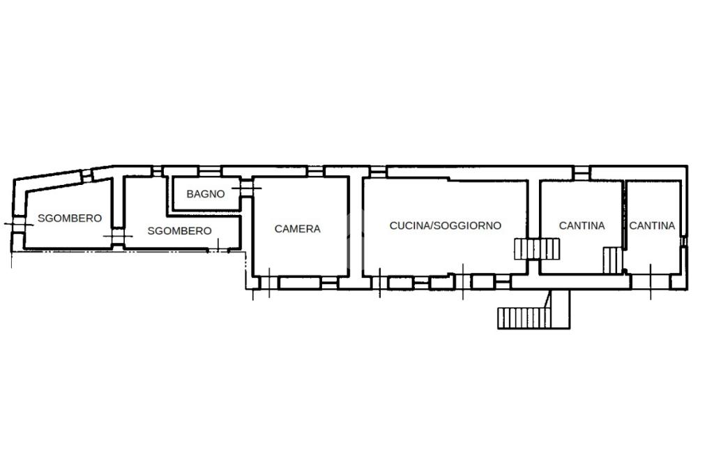
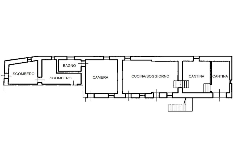
COSTIGLIOLE SALUZZO – In Via Campolungo proponiamo caseggiato indipendente, libero su quattro lati e dotato di ampio giardino privato.
L’immobile è attualmente composto da:
Piano terreno:
- Ingresso su soggiorno con angolo cottura
- Una camera da letto matrimoniale
- Un bagno finestrato con box doccia
- Due cantine
- Locali sgombero a servizio del piano
Piano primo (con accesso da scala esterna):
- Due camere da letto
- Un bagno
A completare la proprietà vi sono un’ampia area esterna privata, una tettoia e svariati locali deposito, ideali come spazio accessorio.
Recentemente realizzata la fossa biologica, elemento che rappresenta un importante intervento di aggiornamento e valore aggiunto per l’immobile.

Ogni agenzia ha un proprio titolare ed è autonoma. - Le presenti informazioni non costituiscono elemento contrattuale.

Mostra tutto

Nelle vicinanze

Trasporto pubblico Trasporto pubblico
Trasporto pubblico
2,4 Km
Scuole Scuole
Scuola dell'Infanzia
2,6 Km
Scuola Elementare
2,6 Km
Negozi Negozi
Negozi
2,5 Km
Panetteria Marchetti
2,5 Km
Bar Bar
Bar Herbie
200 m
Ristoranti Ristoranti
Agriturismo Cascina Giselberga
2,6 Km
Trattoria del Castello
2,6 Km
Piatti di Parola
3,0 Km
Mostra tutto

Caratteristiche

Rif.:
61154389
Piano:
1 di 2 (Piano su più livelli)
Box:
1
Posti auto:
1
Balconi:
1
Camere da letto:
3
Mostra tutto
Prezzo Prezzo
€ 195.000
Rata mutuo Rata mutuo
€ 920 / mese
Spese annue Spese annue
€ 0
Proponi il tuo prezzoProponi il tuo prezzo

Classe Energetica

C
C
C
C
C
C
C
C
C
EP globale non rinnovabile:
131.54 kW h/m² anno
EP invernale del fabbricato:
EP estiva del fabbricato:
Anno di costruzione:
1920
Riscaldamento:
Autonomo
Tipo impianto:
A radiatori
Tipo alimentazione:
Gasolio

Ti interessa visionare l'immobile?

Fissa un appuntamento  Fissa un appuntamento

Richiedi informazioni

Clicca su Leggi per aprire l'informativa
* Questi campi sono obbligatori

Calcola il tuo mutuo

Semplice e senza impegno
Anticipo

( % )
Mutuo

( % )

pochi semplici passi

inserisci i tuoi dati
Questionario completato
Grazie per aver richiesto un appuntamento senza impegno con un nostro Consulente del Credito e Assicurativo.

Hai inserito correttamente tutti i dati necessari e a breve riceverai una e-mail con un link da convalidare per inviare i tuoi dati.
Affiliato
Studio Verzuolo Sas
Corso Re Umberto, 74 12039 Verzuolo (CN)

Il nostro staff


  • Luca Fissore
    Affiliato

  • Ivo Milchev
    Collaboratore

  • Emanuela Pagliero
    Collaboratrice

  • Carola Sasia
    Coordinatrice
Corso Re Umberto, 74 12039 Verzuolo (CN)
Zona: Verzuolo-Manta-Costigliole Saluzzo
Mostra su mappa
Orari: Dal lunedì al venerdi 09.00/12.30 - 14.30/19.30 Sabato 09.00/12.30 - 14.30/19.00
Affiliato
Studio Verzuolo Sas
Corso Re Umberto, 74 12039 Verzuolo (CN)

2025 Tecnocasa Franchising S.p.A. - P. IVA 08365160152 - Via Monte Bianco 60/A 20089 Rozzano (MI). Ogni agenzia ha un proprio titolare ed è autonoma. Privacy policy | Policy utilizzo | Cookie policy