 
			 
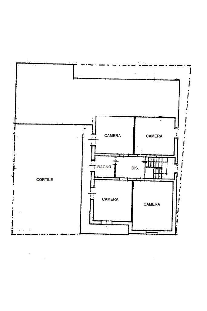
				COSTIGLIOLE SALUZZO, in Frazione Ceretto in ottima posizione tranquilla, proponiamo in vendita casa indipendente disposta su due livelli, con possibilità di realizzare due unità abitative.
L’immobile si presenta attualmente composto da:
- cinque ampie camere da letto;
- tre bagni;
- doppio soggiorno;
- due cucine
Completano la proprietà un magazzino di circa 47 mq e un cortile privato, ideale per godersi momenti all’aperto o per chi desidera uno spazio esterno riservato.
La casa si presenta parzialmente da ristrutturare, offrendo ottime potenzialità per essere personalizzata secondo i propri gusti ed esigenze. Soluzione perfetta anche per due nuclei familiari o per chi cerca una casa spaziosa con ambienti indipendenti.
Ti interessa visionare l'immobile?